Wizualizacja przebudowy Placu Kopernika. Trwa przetarg
W ramach programu rewitalizacji „Lębork Nowy Świat” prowadzone jest postępowanie przetargowe na wyłonienie wykonawcy przebudowy Placu Kopernika. Koncepcję przebudowy placu opracowała Pracownia Szpilewicz Architekci. Plac przed zabytkowym kościołem pw. Najświętszej Maryi Panny Królowej Polski zyska szlachetną nawierzchnię, stylowe oświetlenie, ławki i zieleń. Dziś to miejsce spełnia funkcję drogi tranzytowej dla pieszych idących do szkoły, kościoła czy w kierunku centrum miasta. Projekt przewiduje kompleksową przebudowę Placu. Głównym celem będzie przywrócenie reprezentacyjnego charakteru przestrzeni. Dzięki wprowadzeniu funkcji rekreacyjnej oraz starannie zaplanowanej zieleni plac docelowo ma się stać miejscem wypoczynku okolicznych mieszkańców.
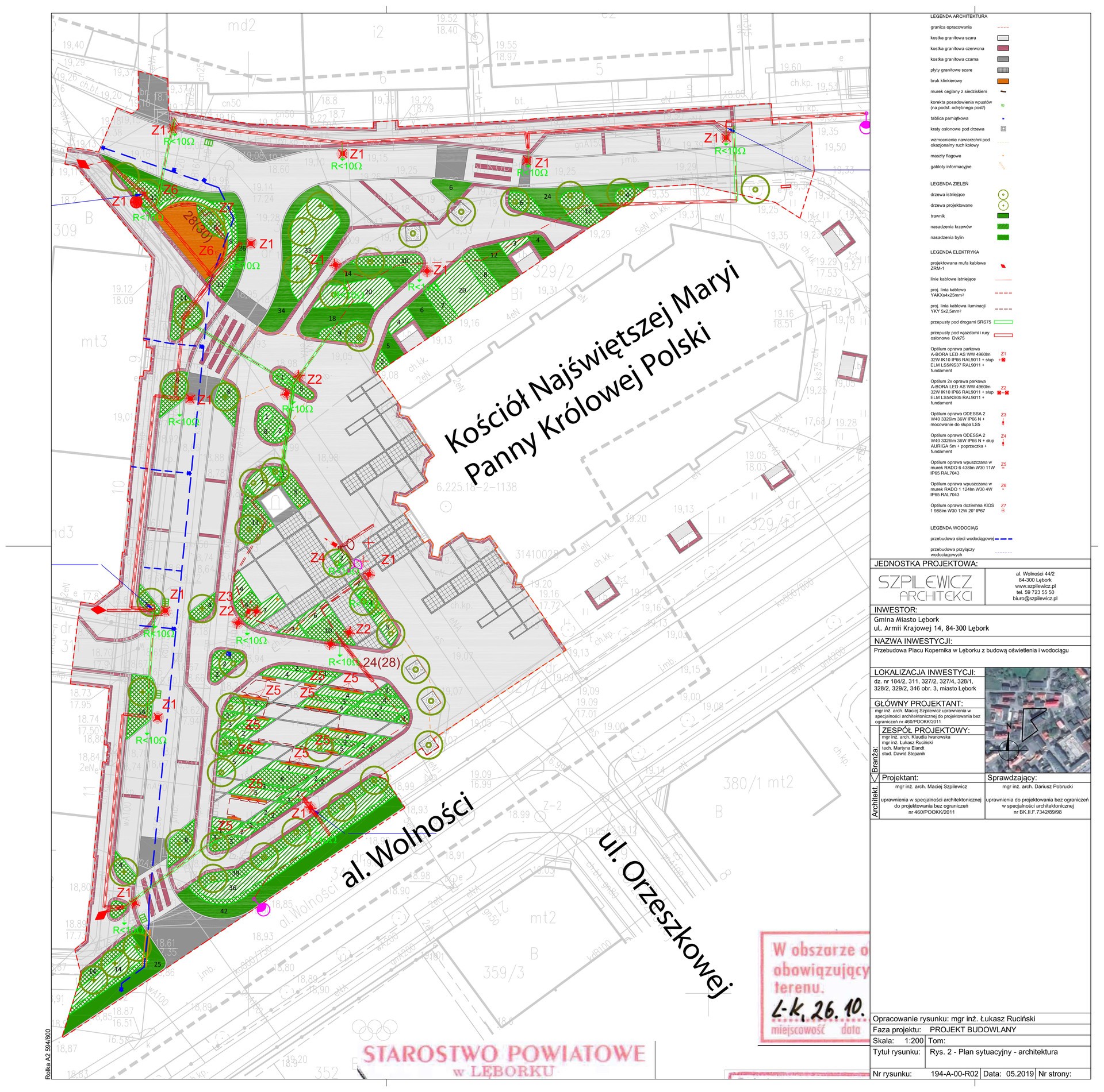
Z racji na reprezentacyjny charakter projektowanej przestrzeni publicznej projekt zakłada wykorzystanie szlachetnych nawierzchni z kostki granitowej. Nawierzchnie piesze przewidziano w zdecydowanej większości z kostki granitowej ciętej oraz kostki granitowej czerwonej łupanej. Ponadto projekt przewiduje wprowadzenie elementów z pojedynczej grafitowej kostki łupanej podkreślającej kompozycję placu. Nawierzchnie jezdni i parkingów wyłożone zostaną szarą łupaną kostką granitową.
Wzdłuż ulicy w kilku miejscach pojawią się zatoki do parkowania, a od strony ulicy Stryjewskiego nowe przejście dla pieszych. Cały teren Placu Kopernika zostanie oświetlony stylowymi lampami, a w jego powierzchni przewidziano 35 lamp iluminacyjnych. Projekt zakłada także postawienie ławek z drewnianymi siedziskami na ceglanych murkach. Ważnym elementem nowego Placu Kopernika będzie atrakcyjna zieleń. Przewidziano nasadzenie 17 drzew, krzewy oraz trawniki. Przy kościele pod wezwaniem maryjnym projektant przewidział zastosowanie szaty roślinnej kwitnącej na biało oraz niebiesko.
Miasto Lębork posiada program funkcjonalno-użytkowy na podstawie którego wykonawca w formule „Zaprojektuj i wybuduj” ma zrealizować inwestycję pn. „Stworzenie terenu rekreacyjnego na Placu Kopernika” jeszcze w tym roku. Trwa postępowanie przetargowe.
Podejmowane działania w ramach Zintegrowanego Programu Rewitalizacji obszaru „Lębork Nowy Świat” mają charakter inwestycyjny jak i społeczny. Wartość Zintegrowanego Programu Rewitalizacji obszaru „Lębork Nowy Świat” to 23 mln 431 tys. zł w tym 14 mln 49 tys. zł dofinansowania unijnego.
















